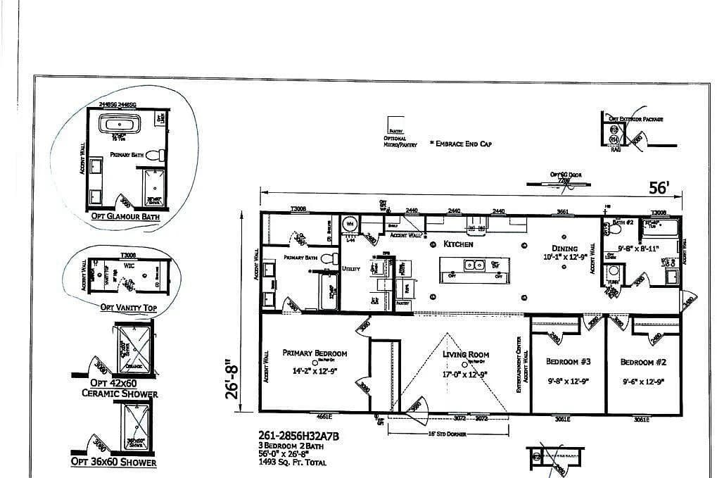
Homes | 21712 NW 274th Street, Okeechobee, FL 34972 (Available Now!) On 1.25 Acres of Land!